Leave a Message

Thank you for your message. We will be in touch with you shortly.

Explore Our Properties

Property Description

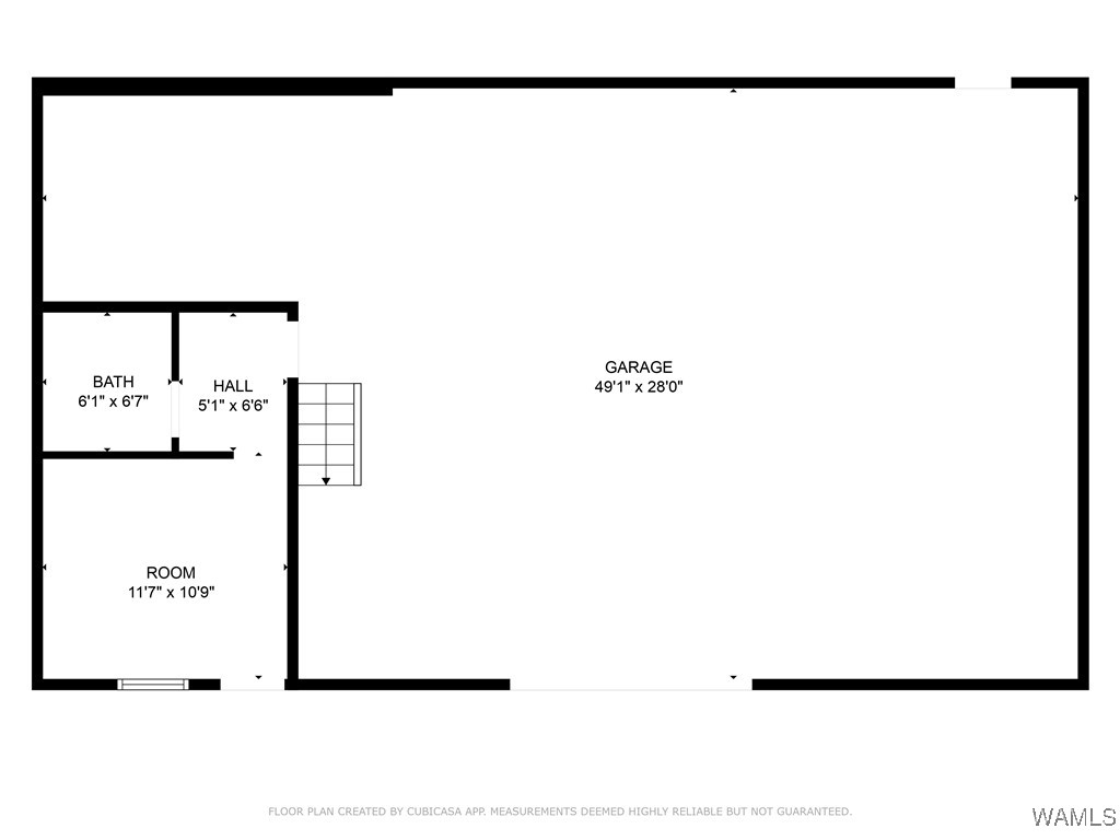
Come with us to discover the Metro Warehouse, Suite F. As centrally located as you can get in Tuscaloosa, the property offers a single office, bathroom, and the rest of the 1155 ft as warehouse. The warehouse features a large roll door, providing easy access to the warehouse. With it's positioning just of of 15th Street and Greensboro Ave, you have quick and easy access to the major thoroughfares in town. Do not miss this opportunity for a prime commercial space to allow your business to thrive.

Overview

Property Status
Leased
MLS ID
170975
Property Type
Commercial
Year Built
1997

Features & Amenities

Total Area
1,155 Sq.Ft.
Neighborhood
Tuscaloosa
Roof
Metal
Lease Price
$866/mo

Downloads

1601 23rd Avenue

Schedule a Tour

We’re here to help you evaluate this commercial opportunity. Schedule a tour to walk the space, discuss your goals, and explore next steps with our team. Please note that tours cannot be accommodated with less than 48 hours’ notice.

Thank you

for your interest in 1601 23rd Avenue, Tuscaloosa, AL 35401

1601 23rd Avenue
Navigate
An aerial shot of the city of Tuscaloosa

Explore Tuscaloosa

read more

I'm Interested In

1601 23rd Avenue

or
  • CallRichard Henry

    License #00099450

    (205) 236-5396
  • Explore Our

    Featured Properties

    • 0000 Joe Mallisham Pkwy For Sale

      $4,000,000

      0000 Joe Mallisham Pkwy, Tuscaloosa, AL 35403

    • Former Food Bank - Sale For Sale

      $2,400,000

      3160 A McFarland Boulevard, Northport, AL 35476

      • 49,000 Sq.Ft.
    • 2124 Westminster Lane For Sale

      $850,000

      2124 Westminster Lane, Tuscaloosa, AL 35406

      • 5 Beds
      • 5 Baths
      • 4,126 Sq.Ft.
    • 2700 Jack Warner Pkwy - Land For Sale

      $800,000

      2700 Jack Warner Pkwy, Tuscaloosa, AL 35404

    • Former Food Bank - Full Lease For Lease

      $19,396/mo

      3160 Mcfarland Boulevard, Northport, AL 35476

      • 49,000 Sq.Ft.
    • Former Food Bank - Suite B For Lease

      $12,000/mo

      3160 Mcfarland Boulevard Unit: B, Northport, AL 35476

      • 24,000 Sq.Ft.
    • Former Food Bank - Suite C For Lease

      $7,500/mo

      3160 Mcfarland Boulevard Unit: C, Northport, AL 35476

      • 15,000 Sq.Ft.
    • 2501 17th St Street Unit: 2 For Lease

      $5,363/mo

      2501 17th St Street Unit: 2, Tuscaloosa, AL 35401

      • 16,090 Sq.Ft.
    • Former Food Bank - Suite A For Lease

      $5,000/mo

      3160 Mcfarland Boulevard Unit: A, Northport, AL 35476

      • 10,000 Sq.Ft.
    • Skyline Plaza, Suite E For Lease

      $5,000/mo

      4628 University Boulevard, Tuscaloosa, AL 35404

      • 6,000 Sq.Ft.
    • 2501 17th St Street Unit: 1 For Lease

      $3,465/mo

      2501 17th St Street Unit: 1, Tuscaloosa, AL 35401

      • 10,396 Sq.Ft.
    • 514 Lurleen Wallace Boulevard S For Lease

      $3,000/mo

      514 Lurleen Wallace Boulevard S, Tuscaloosa, AL 35401

      • 1,449 Sq.Ft.
    • Breckenridge Office Park, Suite C For Lease

      $2,588/mo

      4720 University Boulevard Unit: C, Tuscaloosa, AL 35404

      • 1,725 Sq.Ft.
    • 514 Hargrove Road For Lease

      $2,458/mo

      514 Hargrove Road, Tuscaloosa, AL 35401

      • 1,639 Sq.Ft.
    • 700 61st Street Unit: 2 For Lease

      $1,151/mo

      700 61st Street Unit: 2, Tuscaloosa, AL 35405

      • 1,416 Sq.Ft.
    • 700 61st Street Unit: 3 For Lease

      $1,151/mo

      700 61st Street Unit: 3, Tuscaloosa, AL 35405

      • 1,416 Sq.Ft.
    View All