Leave a Message

Thank you for your message. We will be in touch with you shortly.

Explore Our Properties

Property Description

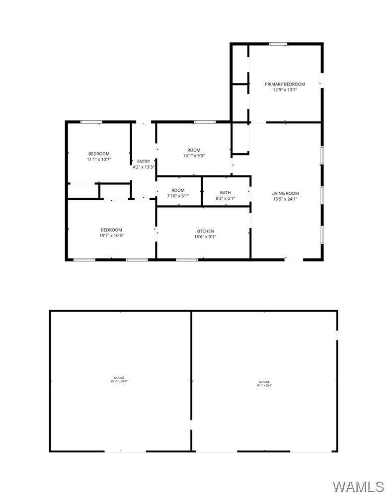
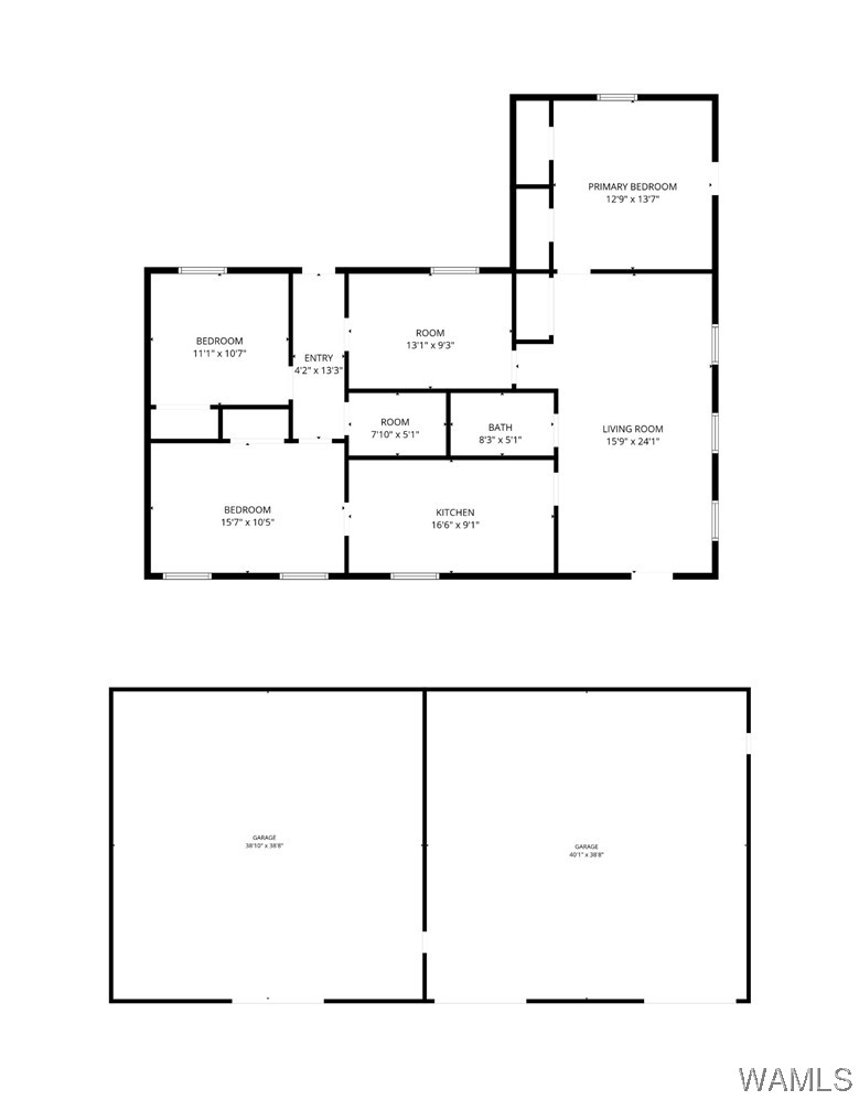
With easy street access to both University BLVD and Kicker Road, this well appointed 1600 sqft office has a welcoming lobby/reception area that has an ADA accessible bathroom. The office includes a kitchen area, three offices, a conference room, and generous storage space. The 3200 sqft of warehouse has three bays and has been well maintained. There is also a large parking pad.

Overview

Property Status
Leased
MLS ID
171804
Property Type
Commercial
Space Type
Office, Flex

Features & Amenities

Total Area
4,800 Sq.Ft.
Neighborhood
Tuscaloosa
Lease Price
$192,000/mo

Downloads

816 21st Ave E

Schedule a Tour

We’re here to help you evaluate this commercial opportunity. Schedule a tour to walk the space, discuss your goals, and explore next steps with our team. Please note that tours cannot be accommodated with less than 48 hours’ notice.

Thank you

for your interest in 816 21st Ave E, Tuscaloosa, AL 35404

816 21st Ave E
Navigate
An aerial shot of the city of Tuscaloosa

Explore Tuscaloosa

read more

I'm Interested In

816 21st Ave E

or
  • CallSeth Richardson

    License #000119436

  • Explore Our

    Featured Properties

    • 0000 Joe Mallisham Pkwy For Sale

      $4,000,000

      0000 Joe Mallisham Pkwy, Tuscaloosa, AL 35403

    • Former Food Bank - Sale For Sale

      $2,400,000

      3160 A McFarland Boulevard, Northport, AL 35476

      • 49,000 Sq.Ft.
    • 2124 Westminster Lane For Sale

      $850,000

      2124 Westminster Lane, Tuscaloosa, AL 35406

      • 5 Beds
      • 5 Baths
      • 4,126 Sq.Ft.
    • 2700 Jack Warner Pkwy - Land For Sale

      $800,000

      2700 Jack Warner Pkwy, Tuscaloosa, AL 35404

    • Former Food Bank - Full Lease For Lease

      $19,396/mo

      3160 Mcfarland Boulevard, Northport, AL 35476

      • 49,000 Sq.Ft.
    • Former Food Bank - Suite B For Lease

      $12,000/mo

      3160 Mcfarland Boulevard Unit: B, Northport, AL 35476

      • 24,000 Sq.Ft.
    • Former Food Bank - Suite C For Lease

      $7,500/mo

      3160 Mcfarland Boulevard Unit: C, Northport, AL 35476

      • 15,000 Sq.Ft.
    • 2501 17th St Street Unit: 2 For Lease

      $5,363/mo

      2501 17th St Street Unit: 2, Tuscaloosa, AL 35401

      • 16,090 Sq.Ft.
    • Former Food Bank - Suite A For Lease

      $5,000/mo

      3160 Mcfarland Boulevard Unit: A, Northport, AL 35476

      • 10,000 Sq.Ft.
    • Skyline Plaza, Suite E For Lease

      $5,000/mo

      4628 University Boulevard, Tuscaloosa, AL 35404

      • 6,000 Sq.Ft.
    • 2501 17th St Street Unit: 1 For Lease

      $3,465/mo

      2501 17th St Street Unit: 1, Tuscaloosa, AL 35401

      • 10,396 Sq.Ft.
    • 514 Lurleen Wallace Boulevard S For Lease

      $3,000/mo

      514 Lurleen Wallace Boulevard S, Tuscaloosa, AL 35401

      • 1,449 Sq.Ft.
    • Breckenridge Office Park, Suite C For Lease

      $2,588/mo

      4720 University Boulevard Unit: C, Tuscaloosa, AL 35404

      • 1,725 Sq.Ft.
    • 514 Hargrove Road For Lease

      $2,458/mo

      514 Hargrove Road, Tuscaloosa, AL 35401

      • 1,639 Sq.Ft.
    • 700 61st Street Unit: 2 For Lease

      $1,151/mo

      700 61st Street Unit: 2, Tuscaloosa, AL 35405

      • 1,416 Sq.Ft.
    • 700 61st Street Unit: 3 For Lease

      $1,151/mo

      700 61st Street Unit: 3, Tuscaloosa, AL 35405

      • 1,416 Sq.Ft.
    View All